5 locali in vendita

Foligno, Via Fabio Filzi
€ 180.000
5 locali 5 locali
160 Mq 160 Mq
2 bagni 2 bagni

5 locali in vendita

Foligno, Via Fabio Filzi

Descrizione annuncio

In una delle zone residenziali più affascinanti di Foligno, lungo il prestigioso Viale Mezzetti, raffinata abitazione sita al secondo ed ultimo piano di una villa in stile liberty dei primi del '900 composta da tre unità abitative.

La villa, circondata da ville d’epoca e giardini curati, sorge in una posizione strategica a due passi dalla stazione ferroviaria, comoda a tutti i servizi ma immersa in un’atmosfera tranquilla e signorile.

L'appartamento colpisce sin dal primo sguardo per il carattere autentico e l’atmosfera d’altri tempi.

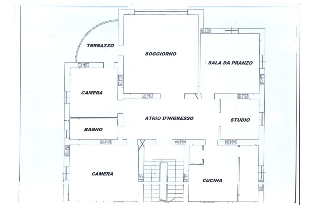
L’ampio atrio d’ingresso conduce a un maestoso salone di circa 40 mq, con grandi finestre ed accesso ad un elegante terrazzo semicircolare, da cui godere scorci suggestivi sulla zona circostante.

Gli ambienti interni si sviluppano in modo armonioso: una camera padronale, due ulteriori camere da letto, una sala da pranzo separata, una cucina con dispensa e un bagno. Tutto è impreziosito da pavimentazioni originali in graniglia artigianale, soffitti alti, dettagli architettonici liberty e infissi d’epoca.

A completare la proprietà: un' ampia soffitta al terzo piano; una splendida altana panoramica al quarto piano, da cui si gode una vista mozzafiato sulla città e sulle colline umbre; un comodo garage privato, parte di fabbricato indipendente al piano terra; due vani con bagno al piano seminterrato perfetti come studio, area hobby o anche come miniappartamento per gli ospiti; un giardino condominiale recintato, curato e riservato, con accesso carrabile da via Filzi e pedonale da Viale Mezzetti.

Un’opportunità unica per chi desidera vivere in una dimora di charme, in un contesto esclusivo, ricco di storia e bellezza architettonica.

Mostra tutto

Nelle vicinanze

Trasporto pubblico Trasporto pubblico
Foligno
Foligno
190 m
Trasporto pubblico
80 m
Ricariche auto elettriche Ricariche auto elettriche
Eneldrive Piazza Matteotti
430 m
LIDL Foligno
1,9 Km
Scuole Scuole
Scuola Elementare
190 m
Centro Studi Città di Foligno
300 m
Liceo "Frezzi - Beata Angela" - indirizzo Scienze Umane
760 m
Istituto Tecnico Industriale Leonardo da Vinci
850 m
Liceo Classico Federico Frezzi
940 m
Farmacia Farmacia
Farmacia del Corso
210 m
San Feliciano
230 m
Farmacia AFAM 2
250 m
Farmacia Centrale
430 m
Farmacia Prato Smeraldo
1,3 Km
Ospedali Ospedali
Nuovo Ospedale San Giovanni Battista
1,8 Km
Supermercati Supermercati
Conad
200 m
COOP
530 m
La Primavera
590 m
Super A&O
820 m
Lidl
910 m
Negozi Negozi
Idexè
170 m
duemme
190 m
bastida
190 m
OVS Industry
200 m
miriade
200 m
Bar Bar
Smile
230 m
Caffé River
230 m
Bar
640 m
Caffé Roma
2,8 Km
Ristoranti Ristoranti
Taverna
180 m
Shanghai
180 m
Mani in Pasta
180 m
Ristorante pizzeria Marechiaro
180 m
E'n'osteria
210 m
Mostra tutto

Caratteristiche

Rif.:
61127118
Piano:
3 di 3 (ultimo Piano)
Box:
1
Posti auto:
1
Terrazzi:
1
Camere da letto:
4
Mostra tutto
Prezzo Prezzo
€ 180.000
Rata mutuo Rata mutuo
€ 849 / mese
Spese annue Spese annue
€ 0
Proponi il tuo prezzoProponi il tuo prezzo

Classe Energetica

G
G
G
G
G
G
G
G
G
EP globale non rinnovabile:
149.00 kW h/m² anno
EP globale rinnovabile:
67.00 kW h/m² anno
EP invernale del fabbricato:
EP estiva del fabbricato:
Anno di costruzione:
1920
Riscaldamento:
Autonomo
Tipo impianto:
A radiatori
Tipo alimentazione:
Metano

Ti interessa visionare l'immobile?

Fissa un appuntamento  Fissa un appuntamento

Richiedi informazioni

Clicca su Leggi per aprire l'informativa
* Questi campi sono obbligatori

Calcola il tuo mutuo

Semplice e senza impegno
Anticipo

( % )
Mutuo

( % )

pochi semplici passi

inserisci i tuoi dati
Questionario completato
Grazie per aver richiesto un appuntamento senza impegno con un nostro Consulente del Credito e Assicurativo.

Hai inserito correttamente tutti i dati necessari e a breve riceverai una e-mail con un link da convalidare per inviare i tuoi dati.
Affiliato
Studio Foligno Ra.ma. Srl
Via XX Settembre , 65/C 06034 Foligno (PG)

Il nostro staff


  • Giuseppe Rafoni
    Affiliato

  • Marco Mariani
    Affiliato

  • Simona Floridi
    Coordinatrice

  • Simona Mariani
    Responsabile

  • Francesca Bertini
    Coordinatrice

  • Fabio Torti
    Collaboratore
Via XX Settembre , 65/C 06034 Foligno (PG)
Zona: Foligno
Mostra su mappa
Orari: lunedì-venerdì 09:00-13:00/15:30-19:30 (estivo 16:00-20:00); sabato 09:00-13:00; domenica chiuso.
Affiliato
Studio Foligno Ra.ma. Srl
Via XX Settembre , 65/C 06034 Foligno (PG)

2026 Tecnocasa Franchising S.p.A. - P. IVA 08365160152 - Via Monte Bianco 60/A 20089 Rozzano (MI). Ogni agenzia ha un proprio titolare ed è autonoma. Privacy policy | Policy utilizzo | Cookie policy