Attico in vendita

Foligno, Via dei Martiri
€ 155.000
Prezzo aggiornato
3 locali 3 locali
81 Mq 81 Mq
1 bagno 1 bagno

Attico in vendita

Foligno, Via dei Martiri

Descrizione annuncio

VIA DEI MARTIRI

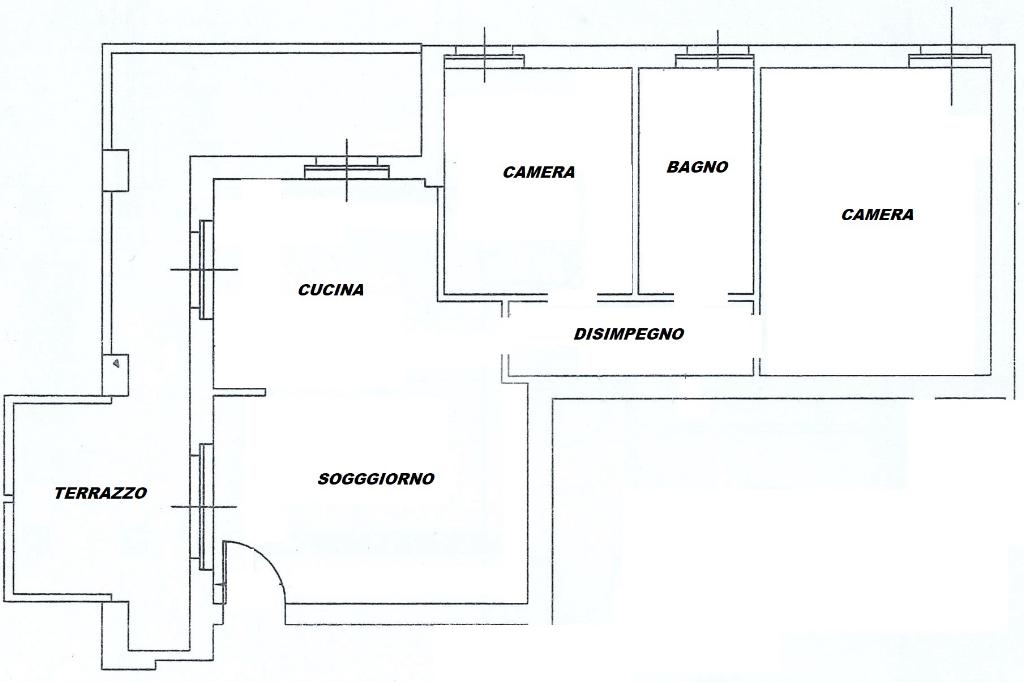
In una delle zone residenziali più esclusive e tranquille di Foligno, in una primissima periferia sita nelle vicinanze del centro storico, attico raffinato e moderno, situato al secondo ed ultimo piano di una palazzina in mattoncini di recente realizzazione composta da nove unità abitative.

L’abitazione, di 81 mq catastali, si distingue per gli spazi luminosi, funzionali e ben distribuiti:


- Accogliente ingresso su ampia zona giorno con soggiorno/zona divano con predisposizione per camino e area cucina/pranzo a vista,


- Doppio accesso a un ampio terrazzo coperto di circa 20 mq, perfetto per vivere all’aperto in ogni stagione,


- Camera matrimoniale spaziosa, camera singola e comodo bagno con vasca.

Completano la proprietà un garage di 23 mq al piano seminterrato e buone finiture, ideali per chi cerca il giusto equilibrio tra comfort, eleganza e praticità.

Posizione invidiabile, a pochi minuti dal centro ma inserita in un contesto residenziale tranquillo e riservato, una delle aree più richieste della città.

Un’opportunità unica per chi desidera vivere la qualità e la comodità di un attico moderno in una zona prestigiosa di Foligno.

Mostra tutto

Nelle vicinanze

Trasporto pubblico Trasporto pubblico
Foligno
Foligno
640 m
Trasporto pubblico
600 m
Ricariche auto elettriche Ricariche auto elettriche
Eneldrive Piazza Matteotti
740 m
LIDL Foligno
2,2 Km
Scuole Scuole
Scuola Elementare
630 m
Liceo "Frezzi - Beata Angela" - indirizzo Scienze Umane
810 m
Centro Studi Città di Foligno
830 m
Istituto Tecnico Industriale Leonardo da Vinci
970 m
Istituto Tecnico Commerciale Feliciano Scarpellini
990 m
Farmacia Farmacia
Farmacia AFAM 2
300 m
Farmacia del Corso
490 m
San Feliciano
760 m
Farmacia Centrale
780 m
Farmacia Prato Smeraldo
1,8 Km
Ospedali Ospedali
Nuovo Ospedale San Giovanni Battista
1,9 Km
Supermercati Supermercati
Super A&O
410 m
Lidl
470 m
Conad
680 m
COOP
920 m
La Primavera
940 m
Negozi Negozi
Forno Santa Rita
390 m
Cafedelmar
430 m
bastida
470 m
duemme
480 m
miriade
500 m
Bar Bar
Caffé River
330 m
Smile
760 m
Bar
1,0 Km
Caffé Roma
2,4 Km
Ristoranti Ristoranti
La Brace
250 m
E'n'osteria
530 m
bistrot pizzeria
560 m
Cuore Piccante
570 m
Mani in Pasta
620 m
Mostra tutto

Caratteristiche

Rif.:
61161427
Piano:
2 di 2 con ascensore (Piano medio)
Box:
1
Balconi:
1
Terrazzi:
1
Camere da letto:
2
Mostra tutto
Prezzo Prezzo
€ 155.000
Rata mutuo Rata mutuo
€ 724 / mese
Proponi il tuo prezzoProponi il tuo prezzo

Classe Energetica

E
E
E
E
E
E
E
E
E
EP globale non rinnovabile:
190.92 kW h/m² anno
EP globale rinnovabile:
65.00 kW h/m² anno
EP invernale del fabbricato:
EP estiva del fabbricato:
Anno di costruzione:
2008
Riscaldamento:
Autonomo
Tipo impianto:
A radiatori
Tipo alimentazione:
Metano

Prezzo ridotto di €1 (5%%)

Ti interessa visionare l'immobile?

Fissa un appuntamento  Fissa un appuntamento

Richiedi informazioni

Clicca su Leggi per aprire l'informativa
* Questi campi sono obbligatori

Calcola il tuo mutuo

Semplice e senza impegno
Anticipo

( % )
Mutuo

( % )

pochi semplici passi

inserisci i tuoi dati
Questionario completato
Grazie per aver richiesto un appuntamento senza impegno con un nostro Consulente del Credito e Assicurativo.

Hai inserito correttamente tutti i dati necessari e a breve riceverai una e-mail con un link da convalidare per inviare i tuoi dati.
Affiliato
Studio Foligno Ra.ma. Srl
Via XX Settembre , 65/C 06034 Foligno (PG)

Il nostro staff


  • Giuseppe Rafoni
    Affiliato

  • Marco Mariani
    Affiliato

  • Simona Mariani
    Responsabile
Via XX Settembre , 65/C 06034 Foligno (PG)
Zona: Foligno
Mostra su mappa
Orari: lunedì-venerdì 09:00-13:00/15:30-19:30 (estivo 16:00-20:00); sabato 09:00-13:00; domenica chiuso.
Affiliato
Studio Foligno Ra.ma. Srl
Via XX Settembre , 65/C 06034 Foligno (PG)

2026 Tecnocasa Franchising S.p.A. - P. IVA 08365160152 - Via Monte Bianco 60/A 20089 Rozzano (MI). Ogni agenzia ha un proprio titolare ed è autonoma. Privacy policy | Policy utilizzo | Cookie policy